APPARTEMENT

REACHING FOR THE SKY

     GELIJKVLOERS

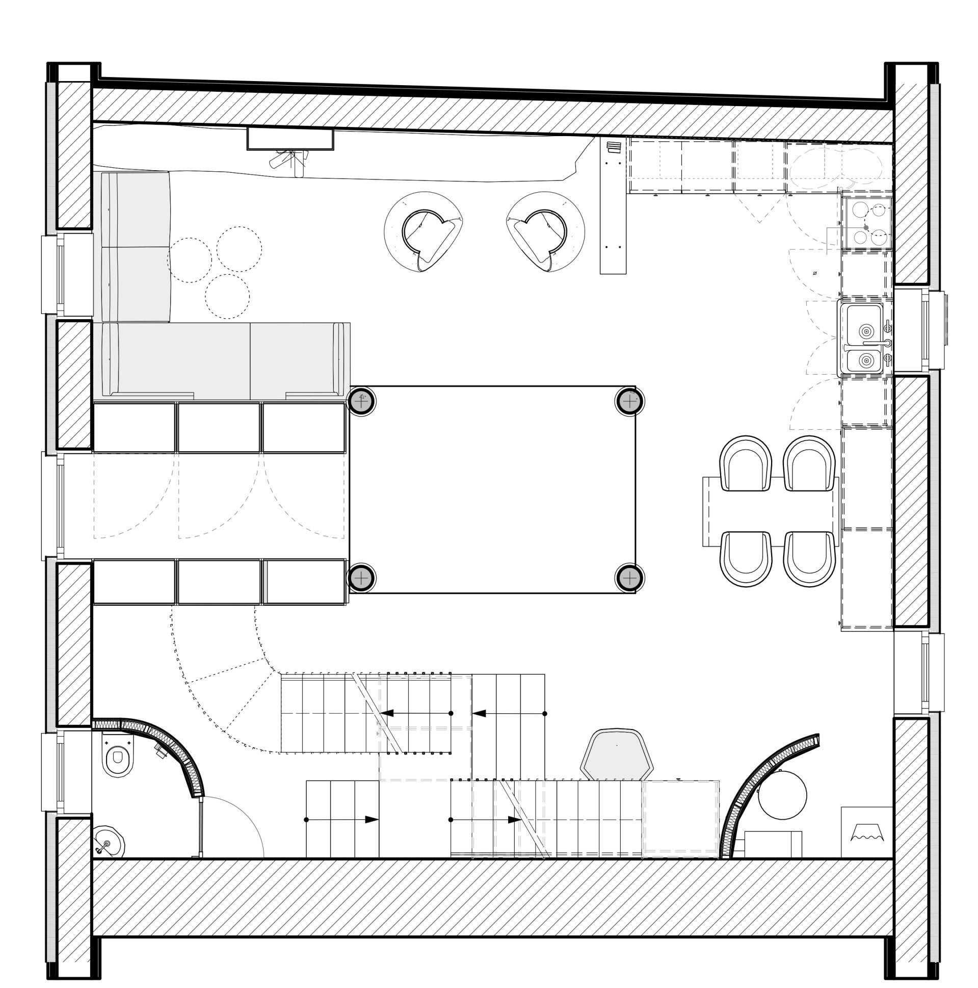
De te renoveren ruimte is de vroegere paardenstal van een vierkantshoeve met een specifieke architectuur: vier kolommen en tonggewelven in baksteenarchitectuur zijn aanwezig.

Mijn interieurvormgeving van het appartement is gebaseerd op het concept "Reaching for the sky" wat zich typeert door de lange, vertikale elementen die doorlopen over alle niveaus. 

VERDIEPING

Zo is er bijv. het  boekenrek, dat doorloopt van living tot slaapkamer, maar ook de slanke, olijfgroene volglas scheidingswanden en de dampkap doen hun uiterste best om de hemel te bereiken. De zwevende eiken trap met trapstijlen die tot aan het plafond reiken, vormt de verbinding tussen de verschillende niveaus.  

 

Maak jouw eigen website met JouwWeb